ブルーミングガーデン 小田原市扇町1丁目1棟/1基1号棟

価格:4,580万円 
間取り:4LDK+カースペース2台
交通:JR東海道本線 ・小田急小田原線「 小田原駅」 徒歩15分
   伊豆箱根大雄山線「 井細田駅」 徒歩8分

ブルーミングガーデン 小田原市扇町1丁目1棟/1基1号棟

【新築分譲住宅】
敷地46坪・北東角地!! 南側も通路で開放的な現地♪ 鉄道2路線利用可!
玄関吹抜・折上天井・オープンサニタリー・勾配天井のゆとりあるおしゃれな内装!

◎JR東海道本線・小田急小田原線「小田原」駅徒歩15分
◎伊豆箱根大雄山線「井細田」駅徒歩8分
◎4LDK+カースペース2台
◎耐震等級3+制震ダンパー
◎長期優良住宅
◎断熱等性能等級5
◎省エネBELS取得住宅

【ライフインフォメーション】
●芦子小学校・・・210m
●白山中学校・・・1100m
●中島保育園・・・1100m
●足柄保育園・・・700m
●クリエイトSD・・・203m
●マックスバリュー・・・850m
●徳洲会西湘病院・・・400m
●池上公園・・・150m

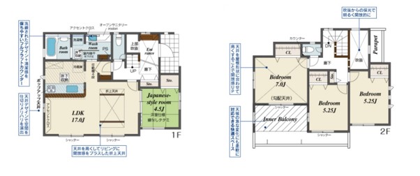
間取り

物件

売買 戸建

所在地

神奈川県小田原市扇町一丁目34-15

価格

4,580万円

交通

JR東海道本線・小田急小田原線 「 小田原駅」 徒歩15分
伊豆箱根大雄山線「 井細田駅」 徒歩8分

土地面積

154.58㎡(約46.76坪)

建物面積

99.95㎡(約30.23坪)

構造

木造サイディングアスファルトシングル葺

間取り

4LDK+カースペース2台

築年

新築

地目

宅地

都市計画

市街化区域

用途地域

第一種住居地域

接道

北側幅員約5.2m・東側幅員約4.0m公道へ接する

土地権利

所有権

取引態様

媒介

建蔽率

60%

容積率

200%

設備

公共水道・公共下水・東京電力・都市ガス

現況

建築中

引渡し

相談(2026年2月下旬完成予定)

周辺地図

PAGE TOP